Negozio in vendita

Gaeta, Via Regina Maria Sofia - Gaeta Medievale
Informazioni in agenzia
8 locali 8 locali
700 Mq 700 Mq
6 bagni 6 bagni

Negozio in vendita

Gaeta, Via Regina Maria Sofia - Gaeta Medievale

Descrizione annuncio

Gaeta - nel suggestivo Centro Storico Medievale proponiamo in esclusiva un fabbricato indipendente di ampia metratura che si sviluppa su più livelli.

Un edificio storico incastonato nel cuore di Gaeta, ristrutturato e curato nel rispetto dei dettami normativi e della incantevole cornice pensinsulare.

Il locale, realizzato nell'antica struttura che un tempo accoglieva la chiesa di Santa Maria dell'Orazione, si presenta in ottime condizioni, con impianti e rifiniture complete e realizzate a regola d'arte.

Attraverso i render 3d visibili nell'annuncio sono state ipotizzate delle piccole modifiche per mostrare il reale potenziale del prestigioso immobile.

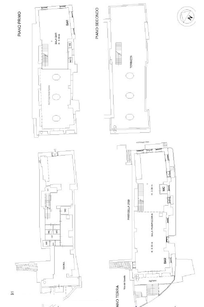
Gli spazi interni sono generosi e possono accogliere qualsiasi attività di ristorazione, ricettiva o intrattenimento con adeguati spazi tecnici.

Il piano seminterrato ad esempio presenta già bagni predisposti per gli operatori e per i clienti. Un'ampia cucina già completa di attrezzature nuovissime e una sala di circa 80 mq.

Il piano terra, dove un tempo c'era la parte centrale della chiesa, ha un'altezza totale di quasi 7 metri. Può essere divisa in una sala di 120 mq, almeno due bagni e un ampio locale per uso ufficio o deposito da 60 mq.

Attraverso una scala si giunge al primo piano strutturato completamente in carpenteria metallica. Qui è già predisposto un bancone bar e un bagno con doppi servizi. In questo spazio si potrebbe realizzare una sala dove ricercare una maggiore intimità e avere una vista particolare che sovrasta l'intero locale.

Infine, immersa nel centro storico di Gaeta, c'è la terrazza. Da questo punto si può godere di una vista fantastica sul porto. L'ipotesi più adatta per sfruttare al meglio questo spazio è quella di un roof garden dove organizzare gli aperitivi incorniciati da tramonti suggestivi.

Le potenzialità e la metratura permette di considerare anche una soluzione alternativa dove il locale può essere diviso in due parti.

La prima porzione prevede il piano seminterrato e il piano terra da utilizzare come ristorante.

La seconda porzione costituita da primo piano e roof garden dove strutturare un lounge bar.

Questa soluzione ovviamente prevede una modifica agli accessi e una divisione netta tramite una parete che funge da filtro visivo ed acustico.

Un immobile importante destinato ad un'attività d'impresa importante in uno degli angoli più apprezzati della Riviera d'Ulisse.

Trattativa riservata, per maggiori informazioni fissare un appuntamento in agenzia.

Saremo bel lieti di ospitarvi. Trovate il nostro ufficio a Gaeta in Via Indipendenza n. 13, l'unica agenzia Tecnocasa presente nella città.

Mostra tutto

Nelle vicinanze

Trasporto pubblico Trasporto pubblico
Trasporto pubblico
1,4 Km
Cotral
Cotral
1,6 Km
Ricariche auto elettriche Ricariche auto elettriche
Gaeta Sirene | EnelX
2,0 Km
Gaeta Calegna | EnelX
2,7 Km
Gaeta Frassini | EnelX
2,8 Km
Gaeta S. Carlo | EnelX
2,9 Km
Scuole Scuole
Scuola Elementare Virgilio
1,6 Km
Scuola Media Statale Principe Amedeo
2,7 Km
Ex Scuola Americana
2,8 Km
Farmacia Farmacia
Farmacia Cipollini
440 m
Farmacia Centrale
1,7 Km
Farmacia
1,8 Km
Gualtieri
1,9 Km
Farmacia Falvo
2,3 Km
Supermercati Supermercati
Carrefour Express
1,8 Km
Sigma
1,8 Km
Conad
2,0 Km
Negozi Negozi
OVS
1,8 Km
Bar Bar
Radio Bottega
40 m
Area di Parcheggio - Sosta Camper
1,3 Km
Bar Triestina
1,6 Km
Ristoranti Ristoranti
Le Sale della Regina
20 m
Mare Fritto
170 m
Ristorante Ferdinando II
460 m
Ristorante Bravo Charlie
1,4 Km
Sfizi e Vizi
1,6 Km
Mostra tutto

Caratteristiche

Rif.:
60878807
Piano:
Su più livelli di 4
Totale piani:
4
Balconi:
1
Condizionamento:
Autonomo
Ascensore:
No
Mostra tutto
Prezzo Prezzo
Informazioni in agenzia
Spese annue Spese annue
€ 10
Proponi il tuo prezzoProponi il tuo prezzo

Classe Energetica

Questo immobile è esente da classe energetica
Anno di costruzione:
1900
Riscaldamento:
Autonomo
Tipo impianto:
Ad aria
Tipo alimentazione:
Aria

Ti interessa visionare l'immobile?

Fissa un appuntamento  Fissa un appuntamento

Richiedi informazioni

* Questi campi sono obbligatori
Affiliato
Studio Gaeta Srl
Via Indipendenza, 13 04023 Gaeta (LT)

Il nostro staff


  • Antonio Corrupato
    Affiliato

  • Raffaele Mauro
    Collaboratore

  • Alisia Meschino
    Coordinatrice

  • Alessio Placitelli
    Responsabile
Via Indipendenza, 13 04023 Gaeta (LT)
Zona: Gaeta
Mostra su mappa
Orari: dal lunedì al sabato invernale 09:00/13:00 - 15:30/20:00 estivo 09:00/13:00 - 16:00/20:30
Affiliato
Studio Gaeta Srl
Via Indipendenza, 13 04023 Gaeta (LT)

2025 Tecnocasa Franchising S.p.A. - P. IVA 08365160152 - Via Monte Bianco 60/A 20089 Rozzano (MI). Ogni agenzia ha un proprio titolare ed è autonoma. Privacy policy | Policy utilizzo | Cookie policy